Description
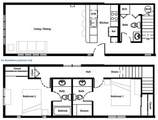
Breath of Life Medford is Oregon's first Net Zero Energy Community with 142 mixed-use units and affordable housing development. The Villa Floor Plan is a 1120sf 2 bedroom 2 1/2 bath home featuring hi-tech building materials and energy efficient construction where true fire-resistant construction meets affordable homeownership security. The Villa features an open, efficient floorplan designed for comfortable living and peace of mind. Inside, you'll find modern finishes, ample natural light, and vaulted ceiling where our tech panels offer superb acoustic ratings for an open and bright feeling while still offering privacy and energy efficiency. Thoughtfully designed living areas flow seamlessly for both everyday living and entertainment. The Monthly Association fee includes Power, Water/Sewer, High Speed Internet, Garbage, Exterior Landscape and Grounds upkeep.
-
2BEDS
-
N/AACRES
-
2BATHS
-
11/2 BATHS
-
1,120SQFT
-
$188$/SQFT
School Information
Description
Breath of Life Medford is Oregon's first Net Zero Energy Community with 142 mixed-use units and affordable housing development. The Villa Floor Plan is a 1120sf 2 bedroom 2 1/2 bath home featuring hi-tech building materials and energy efficient construction where true fire-resistant construction meets affordable homeownership security. The Villa features an open, efficient floorplan designed for comfortable living and peace of mind. Inside, you'll find modern finishes, ample natural light, and vaulted ceiling where our tech panels offer superb acoustic ratings for an open and bright feeling while still offering privacy and energy efficiency. Thoughtfully designed living areas flow seamlessly for both everyday living and entertainment. The Monthly Association fee includes Power, Water/Sewer, High Speed Internet, Garbage, Exterior Landscape and Grounds upkeep.
© 2026 Oregon Datashare (KCAR | MLSCO | SOMLS). All rights reserved. The data relating to real estate for sale on this web site comes in part from the Internet Data Exchange Program of the Oregon Datashare. Real estate listings held by IDX Brokerage firms other than High Desert Realty are marked with the Internet Data Exchange logo or the Internet Data Exchange thumbnail logo and detailed information about them includes the name of the listing Brokers. Information provided is for consumers' personal, non-commercial use and may not be used for any purpose other than to identify prospective properties the viewer may be interested in purchasing. The consumer will not copy, retransmit nor redistribute any of the content from this website. Information provided is deemed reliable, but not guaranteed. Listing courtesy of High Desert Realty. Data last updated: .2026-03-09T10:43:38.013