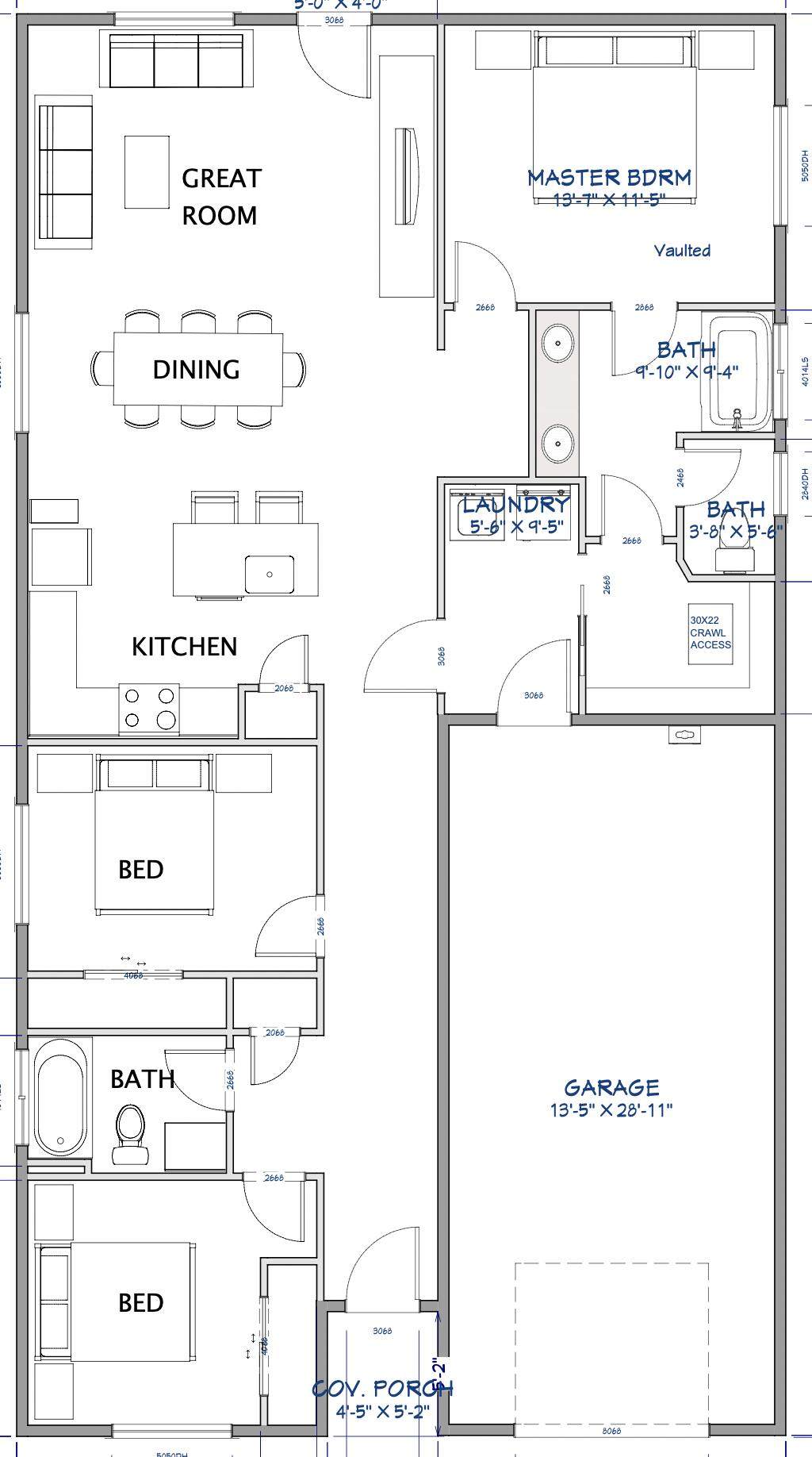
Description
Meadows at Crooked Creek Phase 2--18 detached and 4 attached new homes conveniently located in the heart of Medford, with occupancy starting in spring 2024. This beautiful modern farmhouse-style detached single-story home by Rispoli Design & Build features 1,441 sq ft (per builder), 3 bedrooms and 2 full baths, and 100% Hardie cement non-combustible siding & trim exterior. Features include vaulted and/or 9-ft ceilings, quartz countertops, heat pump water heater, plank flooring, porcelain tile, ductless mini-split HVAC, kitchen island, s/s appliances, Diamond Mantra cabinets with soft-close doors & hidden hinges, fully finished garage with wi-fi opener, vinyl fencing, professional landscaping, Energy Trust certification, and much more! Ready for immediate occupancy.
-
3BEDS
-
0.09ACRES
-
2BATHS
-
01/2 BATHS
-
1,441SQFT
-
$267$/SQFT
School Information
Description
Meadows at Crooked Creek Phase 2--18 detached and 4 attached new homes conveniently located in the heart of Medford, with occupancy starting in spring 2024. This beautiful modern farmhouse-style detached single-story home by Rispoli Design & Build features 1,441 sq ft (per builder), 3 bedrooms and 2 full baths, and 100% Hardie cement non-combustible siding & trim exterior. Features include vaulted and/or 9-ft ceilings, quartz countertops, heat pump water heater, plank flooring, porcelain tile, ductless mini-split HVAC, kitchen island, s/s appliances, Diamond Mantra cabinets with soft-close doors & hidden hinges, fully finished garage with wi-fi opener, vinyl fencing, professional landscaping, Energy Trust certification, and much more! Ready for immediate occupancy.
Related Properties
© 2025 Oregon Datashare (KCAR | MLSCO | SOMLS). All rights reserved. The data relating to real estate for sale on this web site comes in part from the Internet Data Exchange Program of the Oregon Datashare. Real estate listings held by IDX Brokerage firms other than High Desert Realty are marked with the Internet Data Exchange logo or the Internet Data Exchange thumbnail logo and detailed information about them includes the name of the listing Brokers. Information provided is for consumers' personal, non-commercial use and may not be used for any purpose other than to identify prospective properties the viewer may be interested in purchasing. The consumer will not copy, retransmit nor redistribute any of the content from this website. Information provided is deemed reliable, but not guaranteed. Listing courtesy of High Desert Realty. Data last updated: .2025-11-18T22:43:40.173